Adaptor pentru scaunul Sportscraft S pe suportul pivotant 59501
Adaptor pentru suportul pivotant 59501 pentru instalarea scaunelor Sportcraft.
Adaptor pentru VW T3 + VW LT pentru scaune S 3341
Pentru partea soferului si pasagerului. Numai partea LT sofer. Instalare pe sine glisante originale. (3341000)...
Banc de dormit VW T4 KR si LR
Banca cu 3 fante VW T4 Family Weekender, preasamblata si tapitata. Latimea scaunului aprox. 150...
Banca de dormit VW T4 Family
Canapea extensibila pentru 2 persoane VW T4 Family Bel Ami ingusta, preasamblata si tapitata. Latimea...
Grila de aerisire pentru minivan T4
Dormi bine noaptea, lasa-ti animalele de companie fara griji vara: exista locuri de aerisire in...
Grila de aerisire pentru minivan T4
Dormi bine noaptea, lasa-ti animalele de companie fara griji vara: exista locuri de aerisire in...
Modul bucatarie pentru VW T4 Multivan
Modulul finisat cu sertar spatios pentru tacamuri, usa, raft, raft pliabil pentru aragaz, include chiuveta...
Set ustensile sistem de apa pentru modul de bucatarie VWT4
Set complet pus la dispozitie de Reimo pentru o gama larga de nevoi, potrivit pentru...
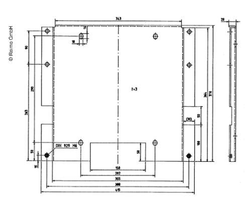
Suport rotativ cu seif pentru scaun, VW T4 din 3/96
Consola rotativa si seif intr-una singura: consola pivotanta transforma scaunul din cabina soferului intr-un fotoliu...
Suport rotativ scaun pentru VW T4 din 96, pasager
Stabilitate si rezistenta maxima datorita nervurilor intarite. Punctul de pivot este putin mai in spate,...
Suport rotativ scaun pentru VW T4 din 96, sofer
Stabilitate si rezistenta maxima datorita nervurilor intarite. Punctul de pivot este putin mai in spate,...
Suport rotativ scaun VW T2/T3, sofer si pasager
Suportii rotativi va permit sa utilizati mai mult spatiu prin integrarea scaunelor din fata in...












